Do wynajęcia lokal użytkowy - ul. Jachowicza, Płock
Powierzchnia: 100 m² | Idealny pod przedszkole, żłobek, poradnię, gabinety terapeutyczne
Biuro nieruchomości Blokhauz oferuje do wynajęcia w pełni przystosowany lokal o powierzchni 100 m², w którym do końca października funkcjonowało przedszkole.
Lokal spełnia wszystkie wymagane normy sanitarne, przeciwpożarowe oraz ewakuacyjne dla działalności opiekuńczo-edukacyjnej.
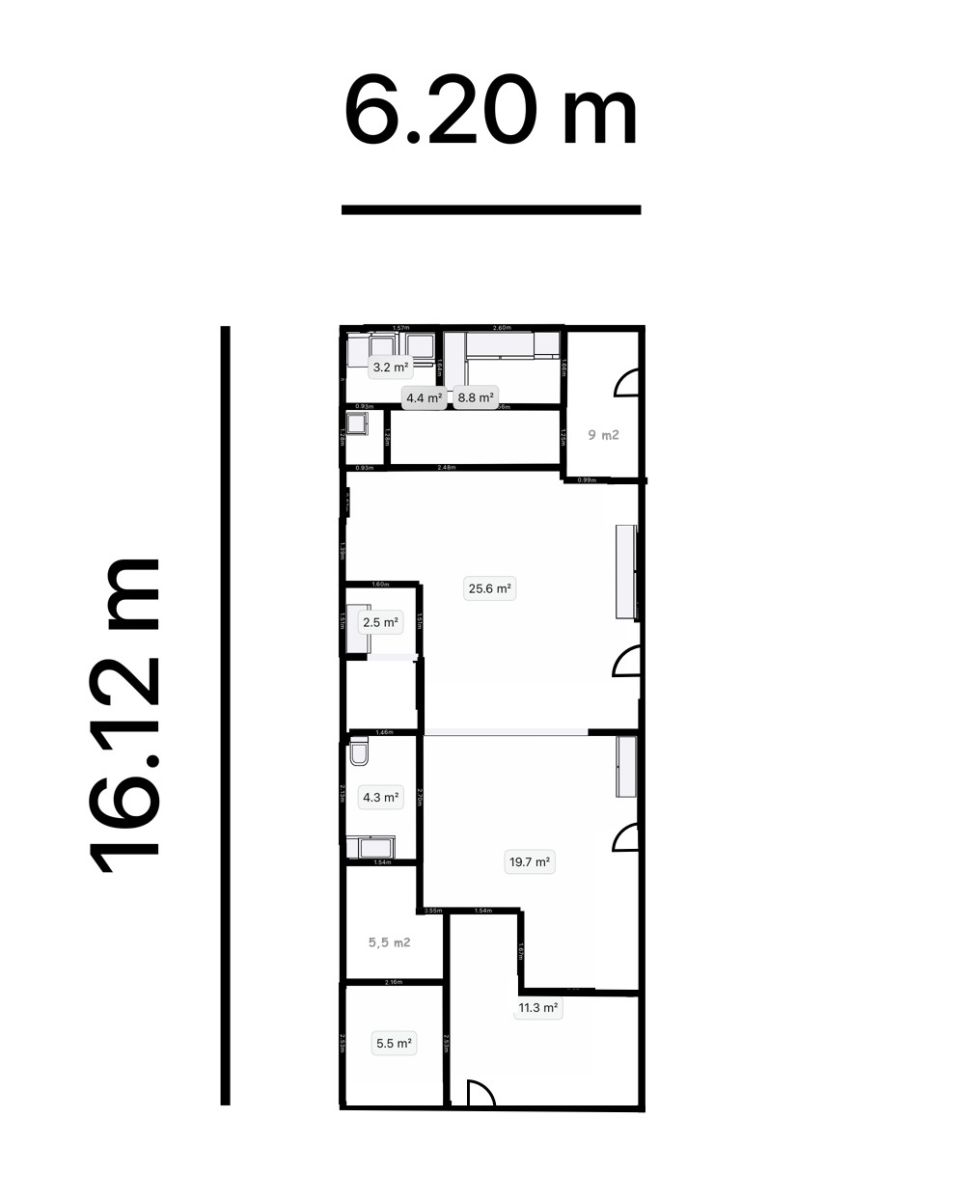
Układ pomieszczeń:
2 przestronne sale dydaktyczne, każda po ok. 25m2
2 łazienki - każda bezpośrednio przy sali
Kuchnia z podziałem na strefę czystą i brudną (zgodna z wymogami sanepidu)
Szatnia dla dzieci
Gabinet dyrektora / sekretariat
Łazienka dla personelu
Wyjścia ewakuacyjne i pełna zgodność z aktualnymi normami
Dodatkowo do lokalu jest możliwość wynajęcia do dodatkową opłatą miejsca na plac zabaw, co stanowi ogromny atut dla działalności przedszkolnej lub żłobkowej.
Idealny pod działalność:
przedszkole
żłobek
klub malucha
poradnia psychologiczno-pedagogiczna
gabinety terapeutyczne
zajęcia edukacyjne dla dzieci
inne usługi opiekuńczo-edukacyjne
Lokal położony jest przy jednej z głównych ulic Płocka, co zapewnia doskonałą widoczność, łatwy dojazd i wygodny dostęp do komunikacji miejskiej.
Cena najmu: 7 000 zł brutto (bez VAT) + czynsz do spółdzielni + opłaty licznikowe
Koszt wynajęcia terenu po plac zabaw - ok. 500 zł.
Agent prowadzący:
Agnieszka Michalska
tel. 791 459 650
Układ pomieszczeń:
2 przestronne sale dydaktyczne, każda po ok. 25m2
2 łazienki - każda bezpośrednio przy sali
Kuchnia z podziałem na strefę czystą i brudną (zgodna z wymogami sanepidu)
Szatnia dla dzieci
Gabinet dyrektora / sekretariat
Łazienka dla personelu
Wyjścia ewakuacyjne i pełna zgodność z aktualnymi normami
Dodatkowo do lokalu jest możliwość wynajęcia do dodatkową opłatą miejsca na plac zabaw, co stanowi ogromny atut dla działalności przedszkolnej lub żłobkowej.
Idealny pod działalność:
przedszkole
żłobek
klub malucha
poradnia psychologiczno-pedagogiczna
gabinety terapeutyczne
zajęcia edukacyjne dla dzieci
inne usługi opiekuńczo-edukacyjne
Lokal położony jest przy jednej z głównych ulic Płocka, co zapewnia doskonałą widoczność, łatwy dojazd i wygodny dostęp do komunikacji miejskiej.
Cena najmu: 7 000 zł brutto (bez VAT) + czynsz do spółdzielni + opłaty licznikowe
Koszt wynajęcia terenu po plac zabaw - ok. 500 zł.
Agent prowadzący:
Agnieszka Michalska
tel. 791 459 650